Sanierung eines denkmalgeschützten Hauses, 2005 ff.
Links: nach der Sanierung
Rechts: Baustelle


Innenansicht: Blick Richtung Straße

Links: Haustür
Rechts: Badezimmer


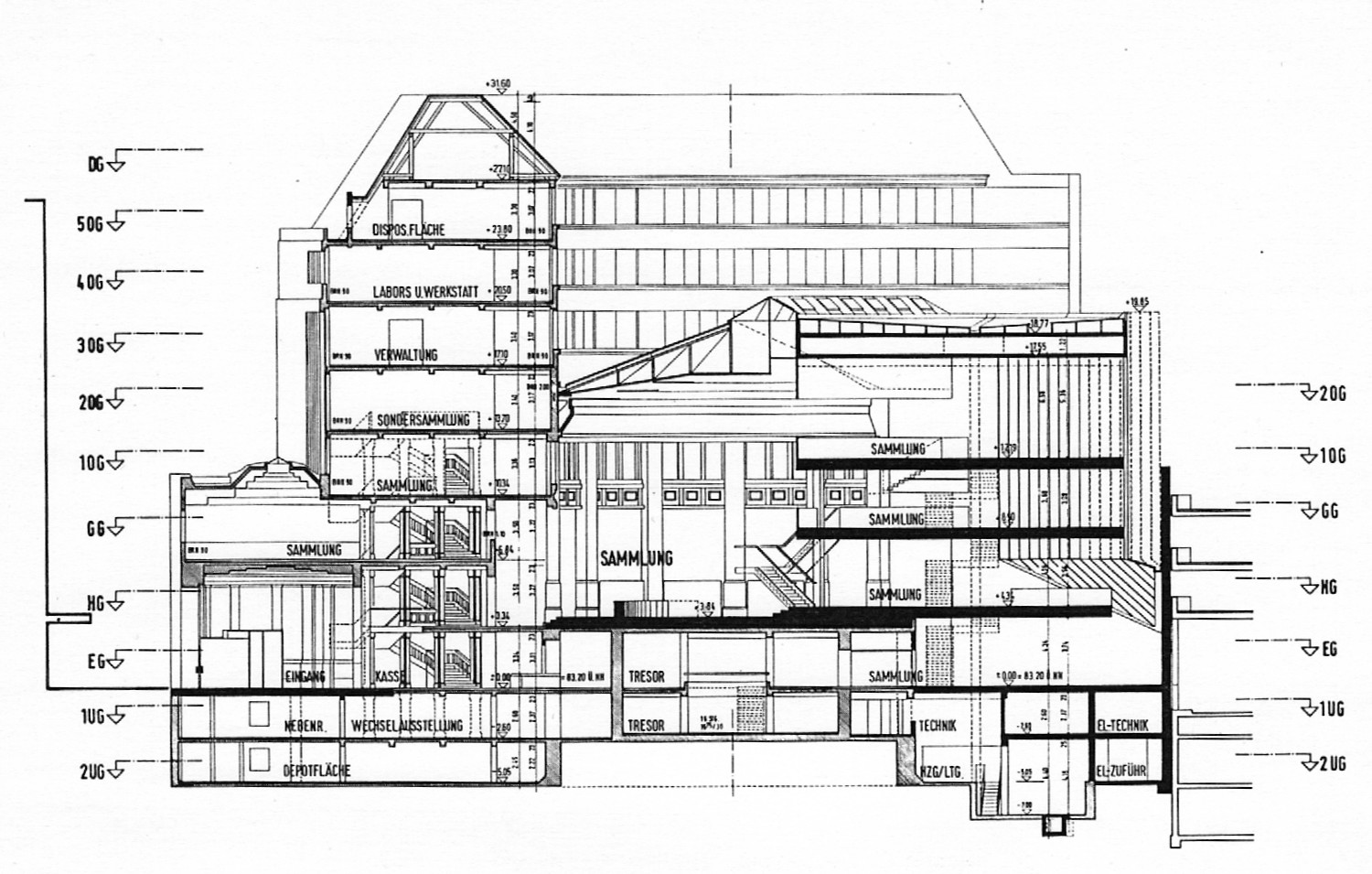
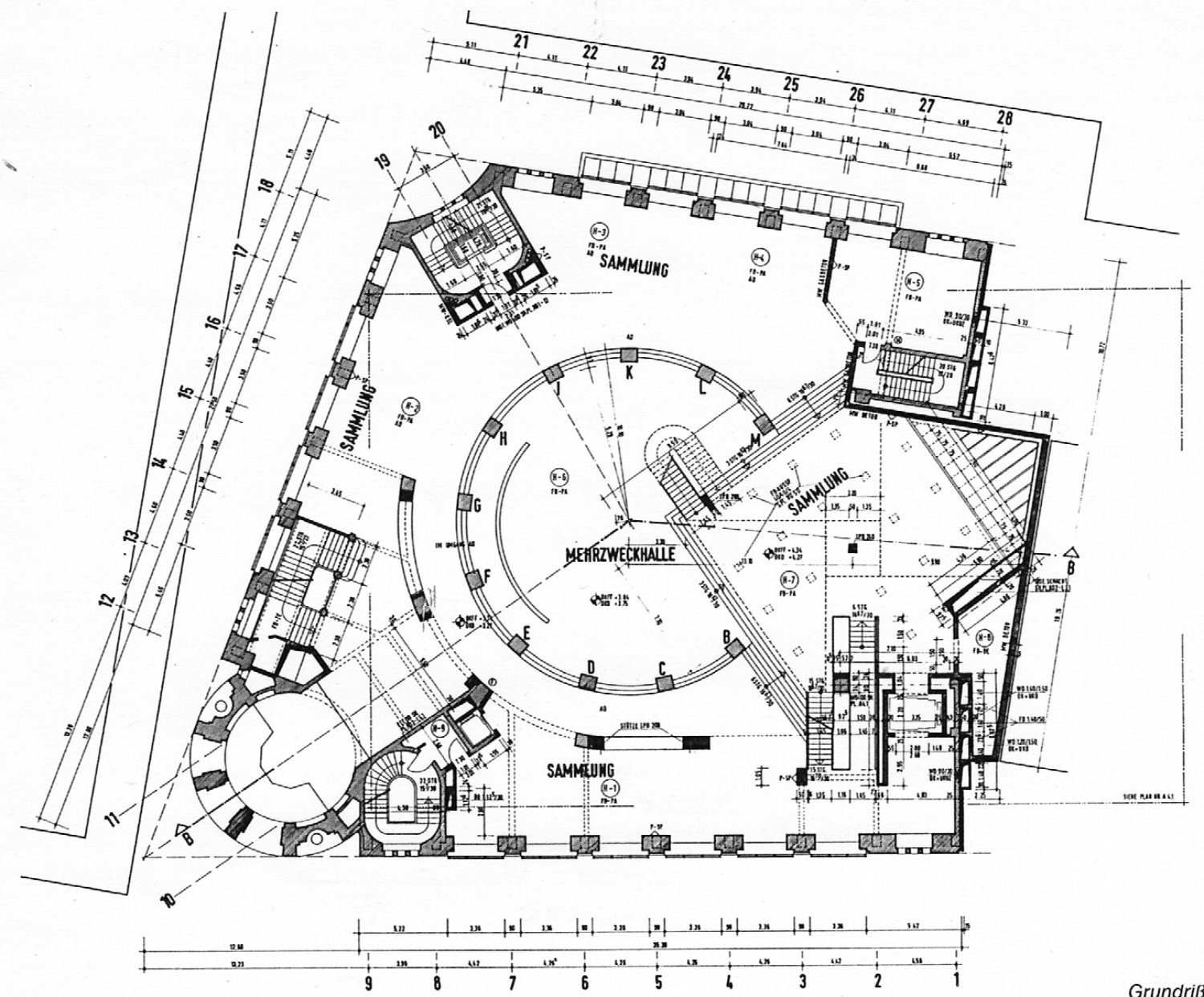
Museum für Kunst und Kulturgeschichte, Dortmund
Links: Schnitt
Rechts: Grundriss


Links: Außenansicht
Mitte: Einbau Rotunde
Rechts: Detail Treppenhaus



Haus Binder, Göppingen
Links: Adaption auf Leinwand mit Bearbeitung
Rechts: Skizze


Entwicklungsprozesss von der ersten Skizze zum Modell



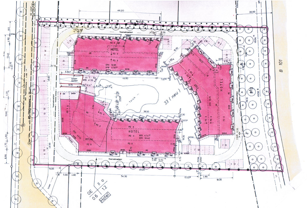
Hotelanlage, Thyrow bei Berlin
Hotelanlage Thyrow bei Berlin, 1993 ff,
Lage

Skizze

Schnitt

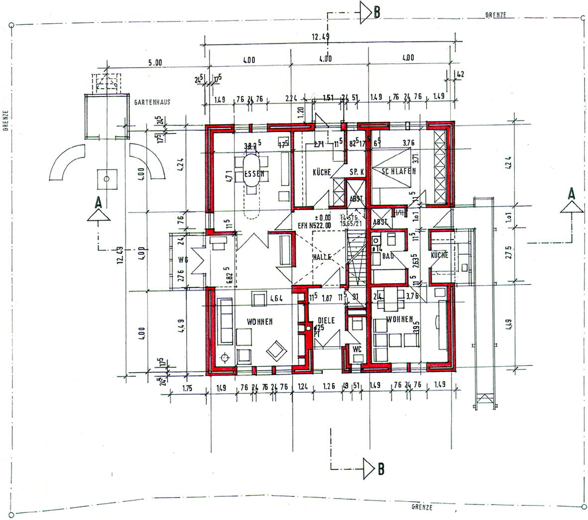
Haus Dr. Klesser Ulm-Söflingen
Links: Ansicht
Rechts: Skizze


Links: Grundriss
Rechts: Skizzen


Haus Bliederhäuser-Nille, Göppingen
Skizzen zum Entwurf

Ansicht

Ansicht

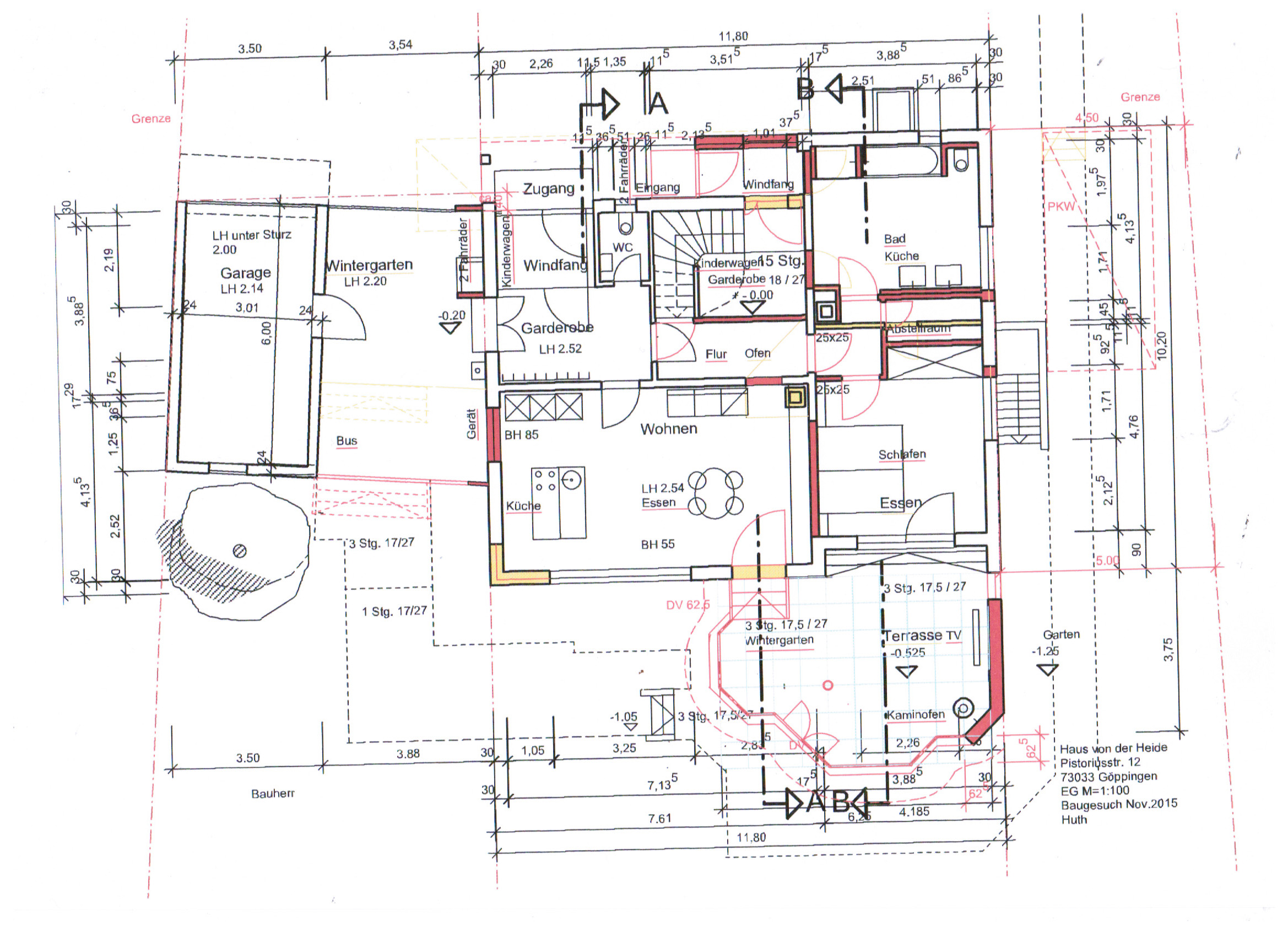
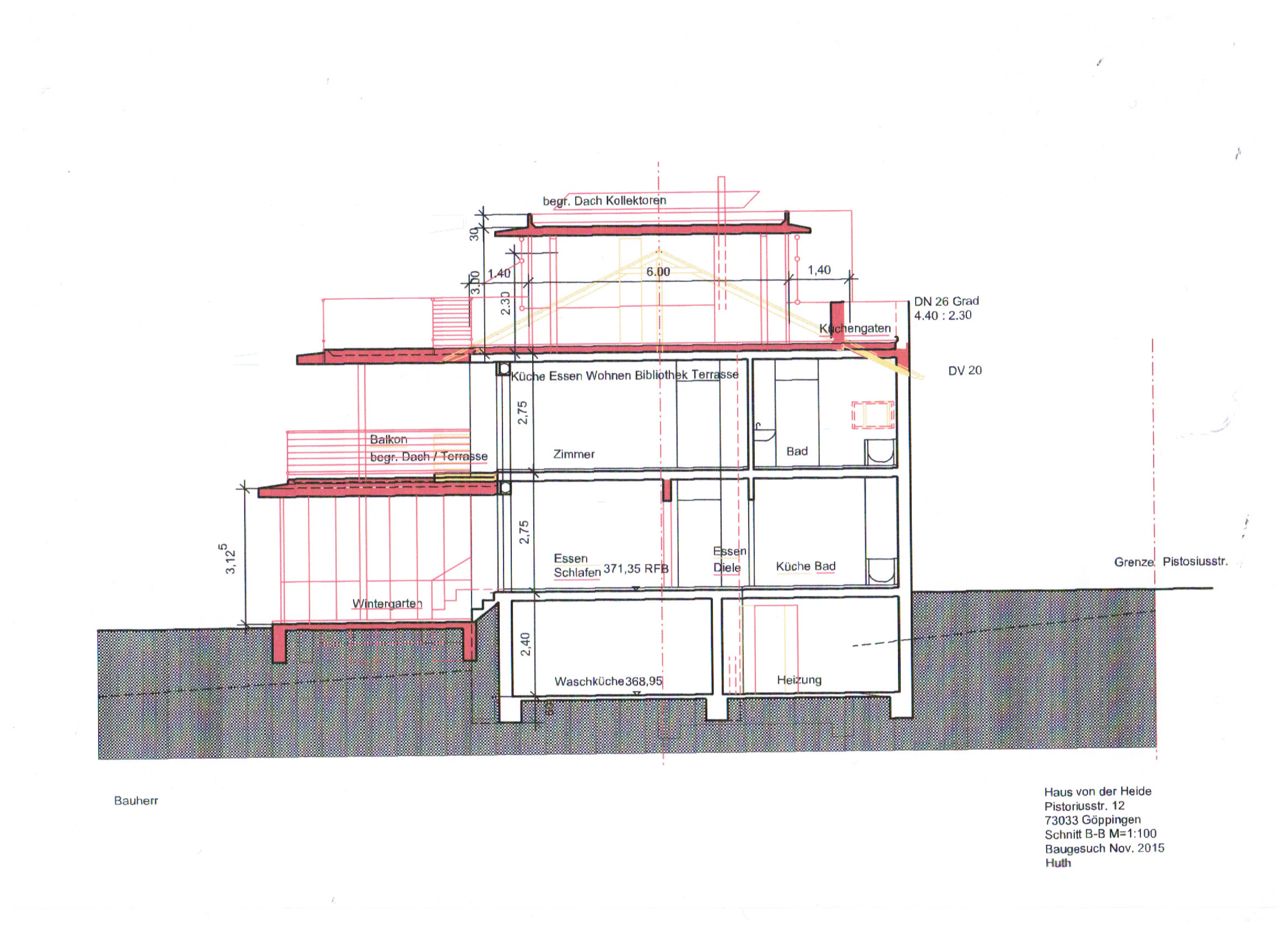
Haus von der Heide, Göppingen
Bestand rechts;
Überformung, Umbau, Erweiterung, Baugesuch 2015

Skizzen oben:
Grundriss links,
Schnitt rechts
Pläne unten:
Grundriss links,
Schnitt rechts




Industrie-Gewerbebau Lenz Uhingen
Planung / Bauzeit 1989-91



Höchst Gewerbebau Birenbach
Planung / Ausführung 1987 - 1989


Planung / Ausführung 1987 - 1989




Schulerweiterung Birenbach
Planung und Bauzeit 1986 - 1990
Lageplan

Ansicht

Grundriss

Innenraum

Detail Auflager

Auflager

Schulerweiterung Eislingen
Wettbewerb 1985
Planung und Ausführung 1985-1989



Schulerweiterung und Musikschule Steinheim a. A.
Wettbewerb 1985
Planung und Ausführung 1985 - 1989

Ansicht

Innensicht

Ansicht Skizze von 1987

Kontakt
Prof. Dr. Steffen Huth
Wagenburgstraße 1
70184 Stuttgart
office@steffenhuth.de
+49 171 196 5463
© Prof. Dr. Steffen Huth 2020